
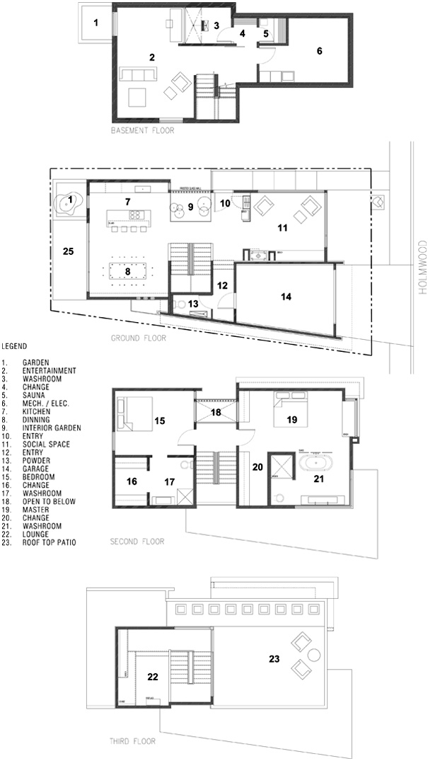
Someone shared this video of how a small apartment in Hong Kong turns into 24 rooms! It is a challenge for designers around the world, shoe boxes and the conversion of rough terrain of the town something majestic and broad appeal. Check out one of these challenges call Square fold. As its name indicates, is an irregular plot close 20'x60 ', which is transformed into a spectacular home of Campbell. more info and images after the break....
Credits:
* Construction - Lake Partnership
* Custom Vanity Cabinet and Design - Studio Linebox
* Custom Millwork and Construction Vanity - constructive attitude
* Engineer - Engineering Star
* Photography - Erin Borg
Creator: Linebox
Credits:
* Construction - Lake Partnership
* Custom Vanity Cabinet and Design - Studio Linebox
* Custom Millwork and Construction Vanity - constructive attitude
* Engineer - Engineering Star
* Photography - Erin Borg
Creator: Linebox





























0 kommentarer:
Post a Comment